supoj
Member
ข้อมูลเพิ่มเติม
Register
Protal
Search Article
PhotoAlbums
Extra Content
Friends
เลือกภาษา
Thai
English
Login
ยินดีต้อนรับสู่ KM
หน้าหลัก
Link น่าสนใจ
RMS
วิชาโปรแกรมซีเอ็นซีเบื้องต้น
คำอธิบายรายวิชา
หน่วยการเรียน
-สื่อการสอน
-แบบทดสอบ
วิชาการเขียนแบบแม่พิมพ์พลาสติกด้วยคอมพิวเตอร์
คำอธิบายรายวิชา
หน่วยการเรียน
-สื่อการสอน
-แบบทดสอบ
วิชาออกแบบและเขียนแบบดารผสิตแม่พิมพ์พลาสติกด้วยคอมพิวเตอร์
คำอธิบายรายวิชา
หน่วยการเรียน
-สื่อการสอน
-แบบทดสอบ
งานวิจัย 1/2565
ใบงาน
Activity
เมษายน 2022
4 ปี ที่ผ่านมา
News
การอบรม KM 27-28 เม.ย. 2565
more
4 ปี ที่ผ่านมา
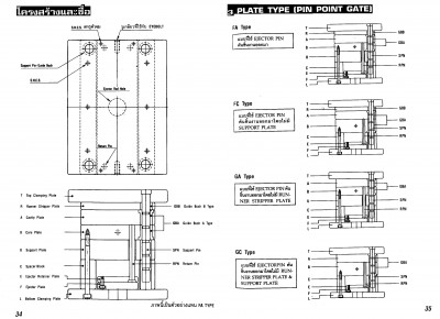
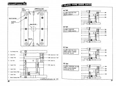
Detail Drawing
more
Thaimoc
SolidworksThai
RMS
StatisticCounter
20893